СТРАНИЦА НЕ НАЙДЕНА!
Свежие, новые объявления о продаже, аренде недвижимости, квартиры, комнаты, дома, машиноместа, коммерческая недвижимость в Астрахани
1


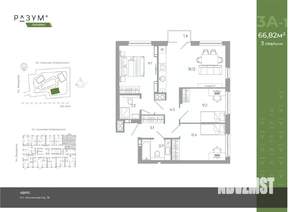
Комната в 2-к квартире, на длительный срок, 59м², 3/17 этаж
5 500 ₽ в месяц
Советский район, Трофимова 6
Комната с балконом, закрывается на ключ. Квартира со всеми удобствами: мебель, посуда, бытовая техника. Спокойный район, магазины в шаговой доступности. Звоните: Восемь девятьсот восемьдесят два семьс...
Агентство, 01.08.2022
1


Комната в 2-к квартире, на длительный срок, 16м², 3/9 этаж
4 500 ₽ в месяц
Трусовский район, мкр. Военный Городок, Грановский переулок 54
Уютная, комфортная. Мебель и техника необходимая для проживания имеется. ...
Агентство, 12.05.2022
Закладки
Личный кабинет






































